事務所
横浜東芝ビル
事務所 入居日ご相談
- 画像
- パノラマ
- 動画
- マップ

外観

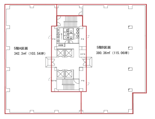
間取り



-
居抜き物件
-
路面店舗
-
飲食可
-
スケルトン
-
事務所可
-
SOHO可
-
駐車場有
-
駅近
-
24Hゴミ出し可
お気に入り

お問い合わせ番号:9991-1392-0-88












-
居抜き物件
-
路面店舗
-
飲食可
-
スケルトン
-
事務所可
-
SOHO可
-
駐車場有
-
駅近
-
24Hゴミ出し可
お気に入り

お問い合わせ番号: 9991-1392-0-88










-
居抜き物件
-
路面店舗
-
飲食可
-
スケルトン
-
事務所可
-
SOHO可
-
駐車場有
-
駅近
-
24Hゴミ出し可
お気に入り

お問い合わせ番号: 9991-1392-0-88

※地図上に表示される物件の位置は実際の物件所在地とは異なる場合がございます。
正確な物件所在地は不動産会社までお問い合わせください。
-
居抜き物件
-
路面店舗
-
飲食可
-
スケルトン
-
事務所可
-
SOHO可
-
駐車場有
-
駅近
-
24Hゴミ出し可
お気に入り

お問い合わせ番号: 9991-1392-0-88

Close
1 / 2
外観

2 / 2
間取り
物件概要
物件種別 | 事務所(区分) | ||||
---|---|---|---|---|---|
物件名 | 横浜東芝ビル | ||||
所在地 | 神奈川県横浜市中区不老町1丁目 | ||||
交通機関 |
JR京浜東北線 関内駅 徒歩2分 |
||||
賃料 | 1,480,622円(税込) 坪単価:11,949円 | 管理費/共益費 | 賃料に込み / - | ||
敷金/保証金 | 12ヶ月 | 礼金 | - | ||
敷引/償却 | - | 更新区分 | 無 | ||
築年月 | 1974年8月(築51年) | 所在階/階建 | 5階/9階地下1階 | ||
構造 | SRC | 専有面積 | 409.62㎡ | ||
契約形態 | 定借 | 取引態様 | 媒介☆ | ||
備考 | 備考:1983年耐震補強工事実施 光ファイバー 貸会議室有 B1倉庫2.31坪あり、床:OAフロア50㎜、空調:個別空調、設備:ELV2基 機械警備 駐車場 |
- 情報登録日:2025/06/04
- 情報更新日:2025/09/03
- 次回更新予定日:2025/09/17
設備・特徴
バス・トイレ | |||
---|---|---|---|
設備・サービス | |||
その他・特徴 |
お問い合わせ
賃貸営業第二部 リーシング第二グループ
所在地/東京都中央区八重洲1丁目5−20
営業時間/10:00~17:00 定休日/土日祝
お問い合わせ番号:9991-1392-0-88
