事務所
麹町ビル
事務所 10月1日入居可能
- 画像
- パノラマ
- 動画
- マップ
外観
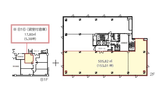
間取り

-
居抜き物件
-
路面店舗
-
飲食可
-
スケルトン
-
事務所可
-
SOHO可
-
駐車場有
-
駅近
-
24Hゴミ出し可
お気に入り
お問い合わせ
お問い合わせ番号:3853-97-0-21
0120-190-390
-
居抜き物件
-
路面店舗
-
飲食可
-
スケルトン
-
事務所可
-
SOHO可
-
駐車場有
-
駅近
-
24Hゴミ出し可
お気に入り
お問い合わせ
お問い合わせ番号: 3853-97-0-21
0120-190-390
-
居抜き物件
-
路面店舗
-
飲食可
-
スケルトン
-
事務所可
-
SOHO可
-
駐車場有
-
駅近
-
24Hゴミ出し可
お気に入り
お問い合わせ
お問い合わせ番号: 3853-97-0-21
0120-190-390
※地図上に表示される物件の位置は実際の物件所在地とは異なる場合がございます。
正確な物件所在地は不動産会社までお問い合わせください。
-
居抜き物件
-
路面店舗
-
飲食可
-
スケルトン
-
事務所可
-
SOHO可
-
駐車場有
-
駅近
-
24Hゴミ出し可
お気に入り
お問い合わせ
お問い合わせ番号: 3853-97-0-21
0120-190-390
Close
1 / 2
外観
2 / 2
間取り
物件概要
| 物件種別 | 事務所(区分) | ||||
|---|---|---|---|---|---|
| 物件名 | 麹町ビル | ||||
| 所在地 | 東京都千代田区九段南3丁目 | ||||
| 交通機関 |
東京メトロ南北線 市ケ谷駅 徒歩6分 東京メトロ有楽町線 市ケ谷駅 徒歩6分 都営新宿線 市ヶ谷駅 徒歩7分 |
||||
| 賃料 | 相談 | 管理費/共益費 | - / - | ||
| 敷金/保証金 | - | 礼金 | - | ||
| 敷引/償却 | - | 更新区分 | 無 | ||
| 築年月 | 1988年7月(築37年) | 所在階/階建 | 2階/7階地下1階 | ||
| 構造 | SRC | 専有面積 | 507.80㎡ | ||
| 契約形態 | 定借/3年 | 取引態様 | 媒介☆ | ||
| 備考 | 備考:新耐震 24時間使用可能 平成25年リニューアル済 地下倉庫1区画5.38坪付き、空調:セントラル+個別空調、設備:ELV2基 | ||||
- 情報登録日:2026/04/28
- 情報更新日:2026/04/28
- 次回更新予定日:2026/05/12
設備・特徴
| バス・トイレ | |||
|---|---|---|---|
| 設備・サービス | |||
| その他・特徴 | |||
お問い合わせ
賃貸営業第二部 リーシング第二グループ
所在地/東京都中央区八重洲1丁目5−20
営業時間/10:00~17:00 定休日/土日祝
お問い合わせ番号:3853-97-0-21
0120-190-390


