事務所
D′sVARIE御徒町ビル
事務所 セットアップ 12月1日入居可能
- 画像
- パノラマ
- 動画
- マップ

外観

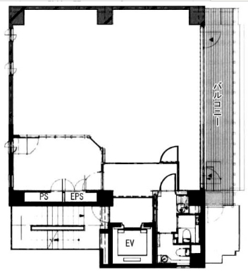
間取り



-
居抜き物件
-
路面店舗
-
飲食可
-
スケルトン
-
事務所可
-
SOHO可
-
駐車場有
-
駅近
-
24Hゴミ出し可
お気に入り

お問い合わせ番号:5611-568-0-1












-
居抜き物件
-
路面店舗
-
飲食可
-
スケルトン
-
事務所可
-
SOHO可
-
駐車場有
-
駅近
-
24Hゴミ出し可
お気に入り

お問い合わせ番号: 5611-568-0-1










-
居抜き物件
-
路面店舗
-
飲食可
-
スケルトン
-
事務所可
-
SOHO可
-
駐車場有
-
駅近
-
24Hゴミ出し可
お気に入り

お問い合わせ番号: 5611-568-0-1

※地図上に表示される物件の位置は実際の物件所在地とは異なる場合がございます。
正確な物件所在地は不動産会社までお問い合わせください。
-
居抜き物件
-
路面店舗
-
飲食可
-
スケルトン
-
事務所可
-
SOHO可
-
駐車場有
-
駅近
-
24Hゴミ出し可
お気に入り

お問い合わせ番号: 5611-568-0-1

Close
1 / 2
外観

2 / 2
間取り
物件概要
物件種別 | 事務所(区分) | ||||
---|---|---|---|---|---|
物件名 | D′sVARIE御徒町ビル | ||||
所在地 | 東京都台東区台東4丁目 | ||||
交通機関 |
東京メトロ日比谷線 仲御徒町駅 徒歩2分 JR山手線 御徒町駅 徒歩4分 都営大江戸線 上野御徒町駅 徒歩5分 |
||||
賃料 | 666,666円(税込) 坪単価:23,098円 | 管理費/共益費 | 賃料に込み / - | ||
敷金/保証金 | 4ヶ月 | 礼金 | - | ||
敷引/償却 | - | 更新区分 | 無 | ||
築年月 | 1988年12月(築36年) | 所在階/階建 | 8階/9階地下1階 | ||
構造 | その他 | 専有面積 | 95.41㎡ | ||
契約形態 | 普通/2年 | 取引態様 | 媒介☆ | ||
備考 | 備考:指定保証会社利用 新耐震 2023年1月、エントランス・外観リニューアル工事済、床:OAフロア、空調:個別空調、設備:ELV1基 機械警備 |
- 情報登録日:2025/08/23
- 情報更新日:2025/09/18
- 次回更新予定日:2025/10/02
設備・特徴
バス・トイレ | |||
---|---|---|---|
設備・サービス | |||
その他・特徴 |
お問い合わせ
賃貸営業第二部 リーシング第二グループ
所在地/東京都中央区八重洲1丁目5−20
営業時間/10:00~17:00 定休日/土日祝
お問い合わせ番号:5611-568-0-1
