事務所
ISM藤沢
- 画像
- パノラマ
- 動画
- マップ
外観
間取り

-
居抜き物件
-
路面店舗
-
飲食可
-
スケルトン
-
事務所可
-
SOHO可
-
駐車場有
-
駅近
-
24Hゴミ出し可
お気に入り
お問い合わせ
お問い合わせ番号:96916
0120-190-390
-
居抜き物件
-
路面店舗
-
飲食可
-
スケルトン
-
事務所可
-
SOHO可
-
駐車場有
-
駅近
-
24Hゴミ出し可
お気に入り
お問い合わせ
お問い合わせ番号: 96916
0120-190-390
-
居抜き物件
-
路面店舗
-
飲食可
-
スケルトン
-
事務所可
-
SOHO可
-
駐車場有
-
駅近
-
24Hゴミ出し可
お気に入り
お問い合わせ
お問い合わせ番号: 96916
0120-190-390
※地図上に表示される物件の位置は実際の物件所在地とは異なる場合がございます。
正確な物件所在地は不動産会社までお問い合わせください。
-
居抜き物件
-
路面店舗
-
飲食可
-
スケルトン
-
事務所可
-
SOHO可
-
駐車場有
-
駅近
-
24Hゴミ出し可
お気に入り
お問い合わせ
お問い合わせ番号: 96916
0120-190-390
Close
1 / 2
外観
2 / 2
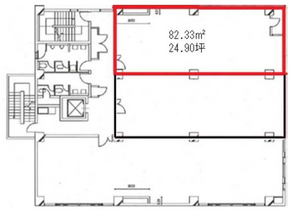
間取り
物件概要
| 物件種別 | 事務所(区分) | ||||
|---|---|---|---|---|---|
| 物件名 | ISM藤沢 | ||||
| 所在地 | 神奈川県藤沢市鵠沼石上1丁目5-4 | ||||
| 交通機関 |
JR東海道本線 藤沢駅 徒歩4分 小田急江ノ島線 藤沢駅 徒歩4分 江ノ島電鉄線 藤沢駅 徒歩4分 |
||||
| 賃料 | 342,375円(税込) 坪単価:13,747円 | 管理費/共益費 | - / 95,865円(税込) | ||
| 敷金/保証金 | 10ヶ月 | 礼金 | 無 | ||
| 敷引/償却 | - | 更新区分 | 無 | ||
| 築年月 | 1990年6月(築35年) | 所在階/階建 | 2階/6階建 | ||
| 構造 | RC | 専有面積 | 82.33㎡ | ||
| 契約形態 | 普通/2年 | 取引態様 | 貸主 | ||
| 備考 | エレベーター 個別空調 駐車場(月額税別)25,000円他諸条件要確認 当方指定の保証会社要加入 借家人賠償責任保険加入義務有り 外看板(月額税別)10,000円 フリーレント1ヵ月 | ||||
- 情報登録日:2026/02/09
- 情報更新日:2026/05/20
- 次回更新予定日:2026/06/03
設備・特徴
| バス・トイレ | |||
|---|---|---|---|
| 設備・サービス | |||
| その他・特徴 | |||
お問い合わせ
賃貸営業第二部 リーシング第二グループ
所在地/東京都中央区八重洲1丁目5−20
営業時間/10:00~17:00 定休日/土日祝
お問い合わせ番号:96916
0120-190-390


